快速建模、準確算量

完全整合的 BIM 流程

結構分析

ETABS

SAP 

SAFE

ARROW

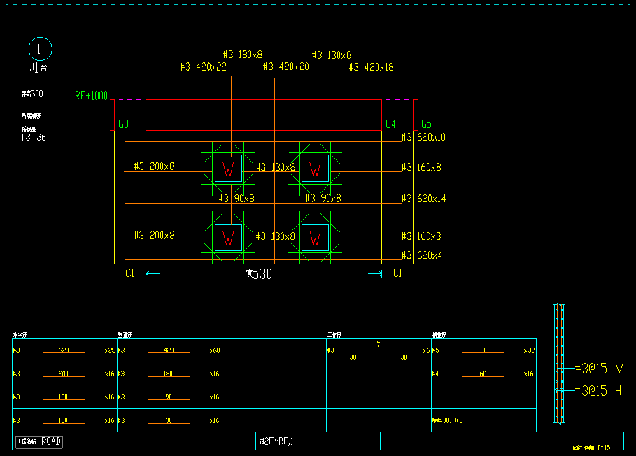
結構後處理

RCAD ASCO

●  2 D 圖資

● 梁柱配筋

● 簡易算量 

ARROW

結構模型

RCAD Building

●  3 D 模型       

● 結構體精算  

● 鋼筋撿料       

●  IFC  Out        

ARROW

鋼筋計料

結構裝修精算

RCAD 軟體產品

適用對象: 結構工程師

結構設計後處理的最佳解決方案!
現可支援ETABS, SAP, SAFE,大幅降低結構設計人力負擔,並針對新時代的設計需求持續推出新功能。

適用對象: 鋼筋撿料人員、營造廠、建設公司

整合BIM模型與鋼筋、結構精算,真正符合成控算量需求、鋼筋撿料施工細節的建模算量軟體

適用對象: 鋼筋承包人員

一鍵計料、秒出料單!
滑鼠框選CAD施工圖,電腦自動判讀,快速輸出Excel料單,
讓傳統鋼筋撿料立即與數位時代接軌。

RCAD 結構/裝修數量精算

RCAD 3D 結構建模算量技術 + CubiCost TAS 裝修算量

以結構建模為基礎,建立施工圖等級鋼筋模型

以>10萬噸鋼筋驗證 + 工地現場的實務經驗為您服務

適用對象: 
統包成控、營造廠、
建設公司、建築師或結構設計者

以工地實務經驗為基礎
用程式研發技術做後盾

歡迎洽詢

我們提供最實務的精準數量

RCAD 鋼筋實務

logo

RCA璟佳富科技 由台大土木結構工程碩士吳杰彥技師於2004年成立,擁有多年軟體開發經驗,
也是台灣目前少數自主開發營建與結構專業程式的在地軟體商。

本公司從最初規劃結構設計後處理程式,在營建業數位化的長途上邁步迄今已逾十年。
近年璟佳富RCAD投入鋼筋撿料/建模精算軟體的開發,並且同時接受建模算量委託服務,
我們希望以軟體研發為導向,藉由實務經驗驗證,
透過持續的創新研發,改善營建流程中的耗時瓶頸,
為營建業不同環節提供靈活易上手的好工具!

軟體開發猶如種一棵樹,
除了工程師投入足夠的時間和精力,
最重要的養分來自於使用者的需求,
只有藉著深入了解與互動溝通,才有持續進步的好產品。 

時代不斷進步,我們所熟悉的產業知識也不斷在更新,當BIM已成為營建新趨勢,
我們必須理解到 – 世界正在改變,而我們也是其中一部分。

聯絡我們

想進一步了解產品功能、洽詢服務細節

請留下您的聯絡方式,將會有專人為您服務!